+ 34 922 97 17 57 info@volcanore.com

RESIDENCIAL LOS FRONTONES

VIVIENDA 19

PLANTA SÓTANO
Superficie útil interior:
Superficie construida:

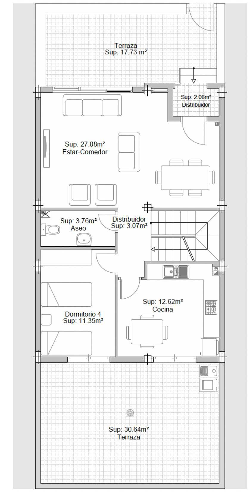
PLANTA BAJA
Superficie útil interior:
Superficie construida:
Superficie terraza:

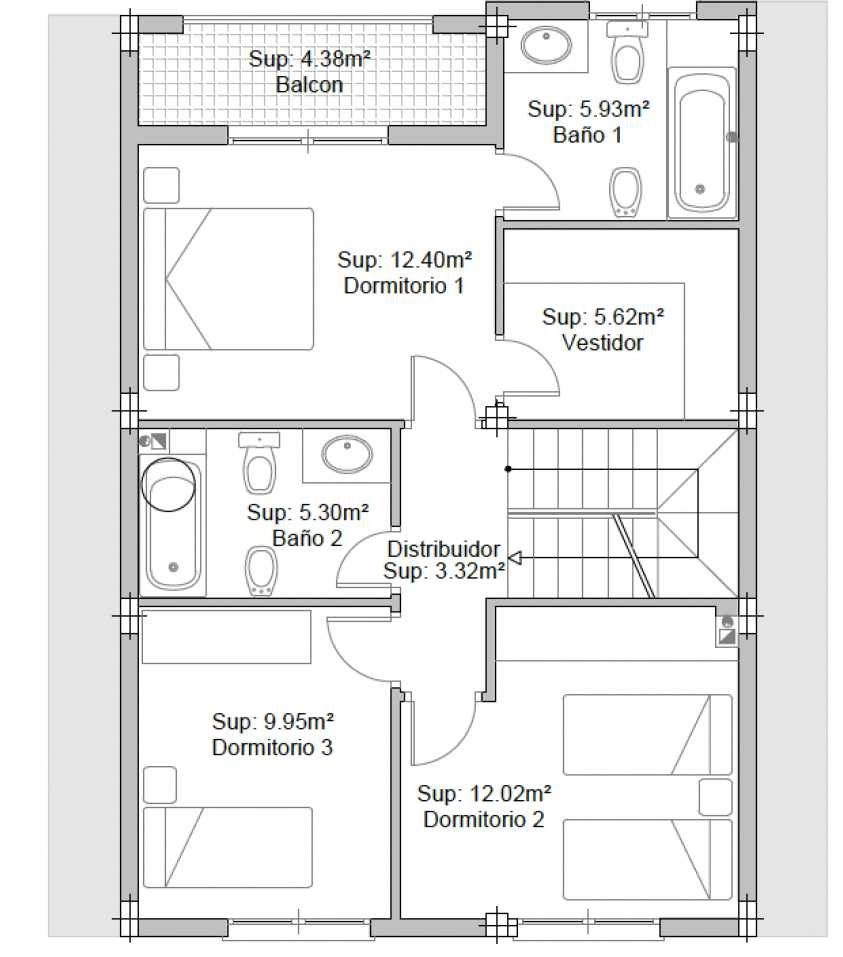
PLANTA ALTA
Superficie útil interior:
Superficie construida:
Superficie balcón:

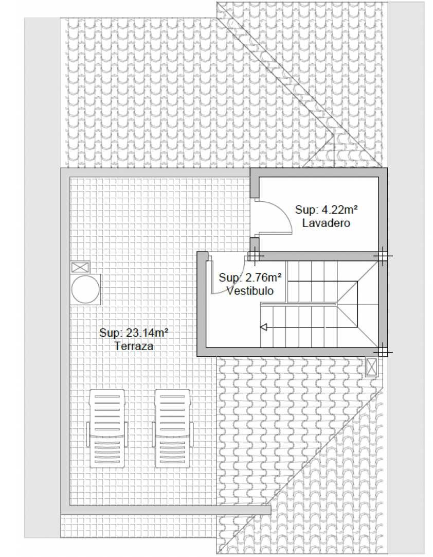
PLANTA CUBIERTAS
Superficie útil interior:
Superficie construida:
Superficie terraza:

SUPERFICIES TOTALES
Superficie útil interior:
Superficie construida:
Superficie terrazas:


57.19 m²
72.81 m²


59.94 m²
72.86 m²
48.37 m²


54.54 m²
73.23 m²
4.36 m²


8.8 m²
16.34 m²
13.45 m²


180.47 m²
235.24 m²
66.18 m²

VIVIENDA 19

PLANTA SÓTANO

PLANTA BAJA

PLANTA ALTA

PLANTA CUBIERTAS

Solicita más información

C/ Villalba Hervás, 4 - 7ª planta,

38002 Santa Cruz de Tenerife

+ 34 922 97 17 57

info@volcanore.com

Accesibilidad          Aviso legal          Política de privacidad          Política de cookies          Condiciones de uso          Canal denuncias

Accesibilidad          Aviso legal         

Política de privacidad          Política de cookies       

Condiciones de uso          Canal denuncias