RESIDENCIAL LOS FRONTONES
VIVIENDA 14
PLANTA SÓTANO
Superficie útil interior:
Superficie construida:
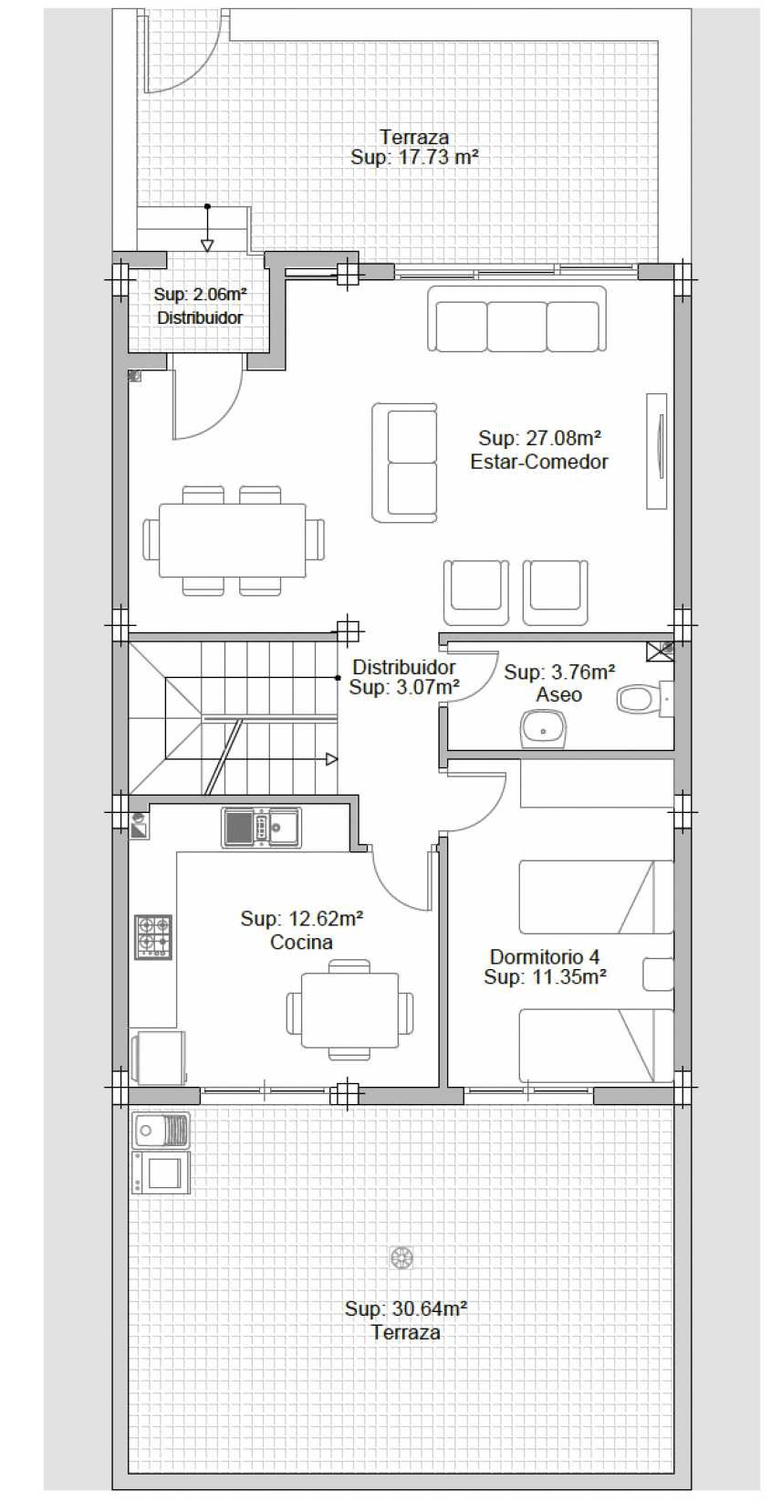
PLANTA BAJA
Superficie útil interior:
Superficie construida:
Superficie terraza:
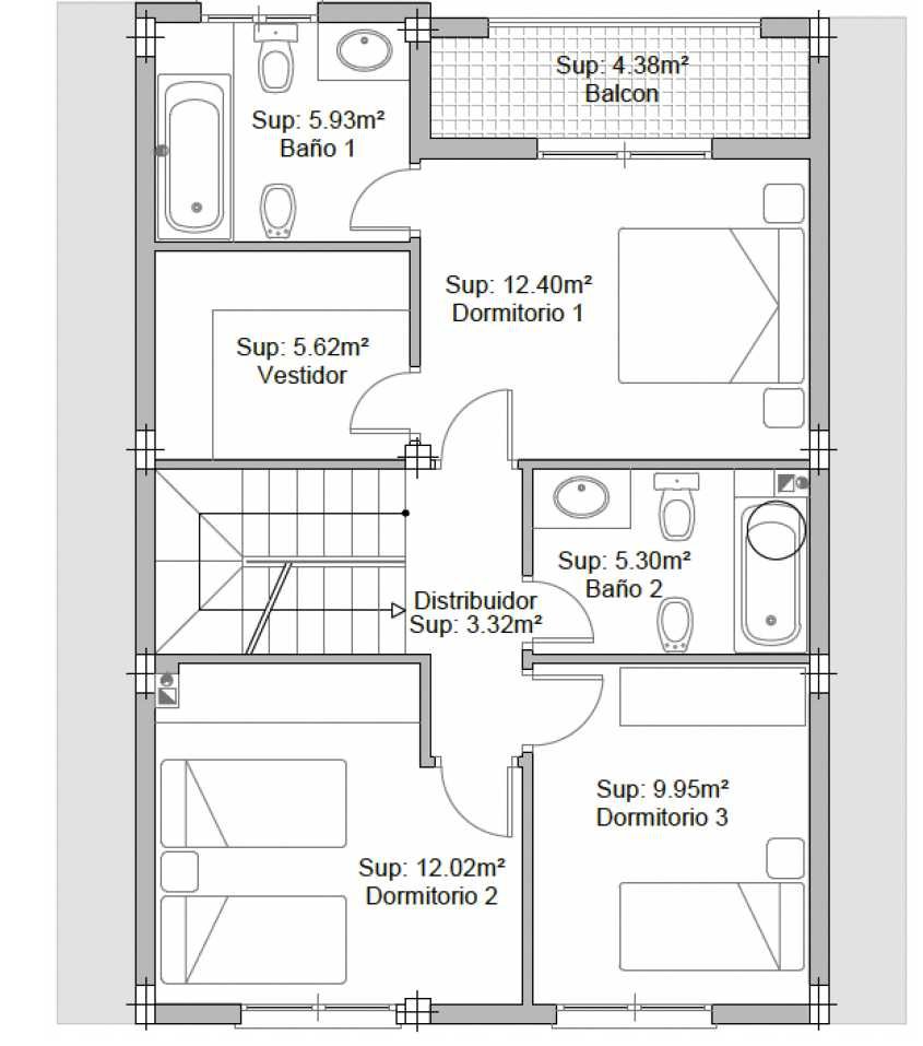
PLANTA ALTA
Superficie útil interior:
Superficie construida:
Superficie balcón:
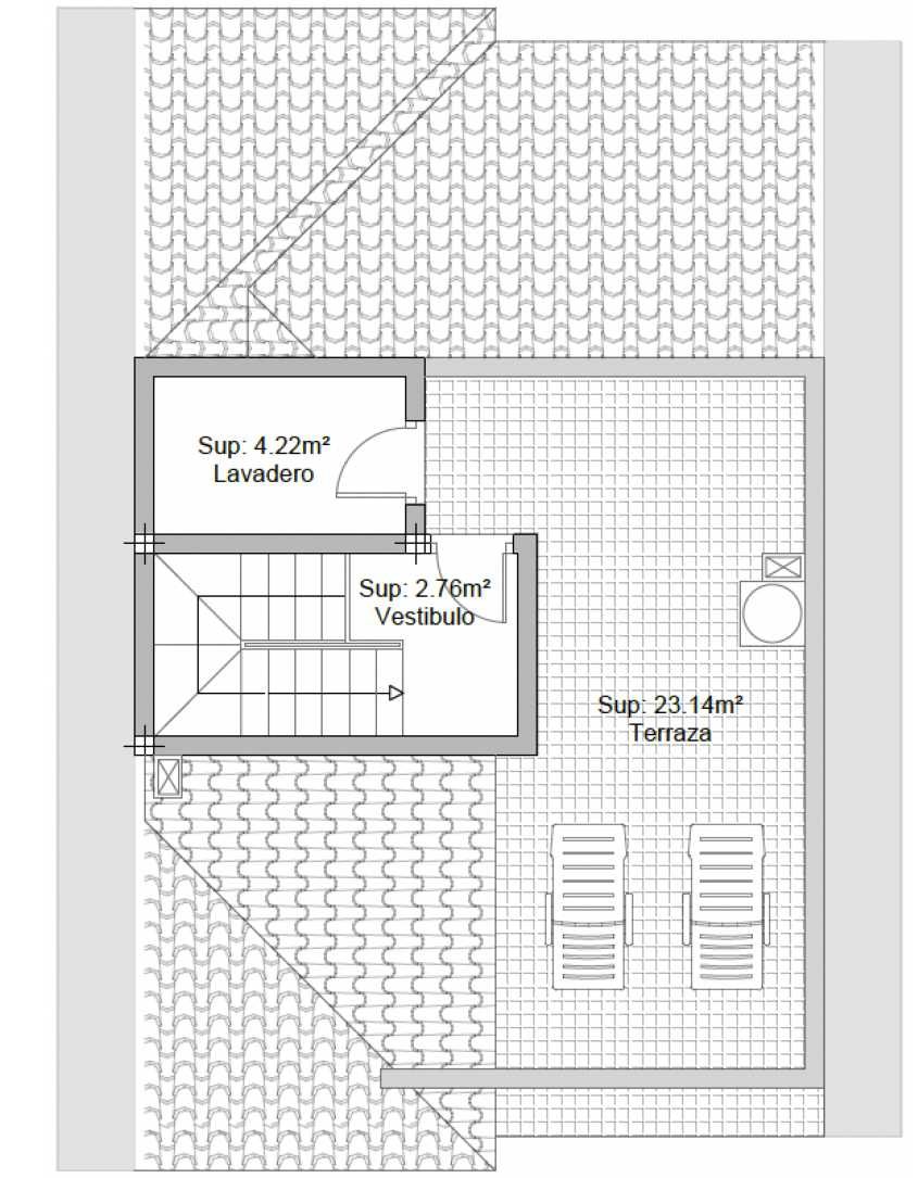
PLANTA CUBIERTAS
Superficie útil interior:
Superficie construida:
Superficie terraza:
SUPERFICIES TOTALES
Superficie útil interior:
Superficie construida:
Superficie terrazas:
57.19 m²
72.81 m²
59.94 m²
72.86 m²
48.37 m²
54.54 m²
73.23 m²
4.36 m²
8.8 m²
16.34 m²
13.45 m²
180.47 m²
235.24 m²
66.18 m²
Solicita más información
C/ Villalba Hervás, 4 - 7ª planta,
38002 Santa Cruz de Tenerife
+ 34 922 97 17 57
info@volcanore.com






